Einfamilienhaus mit Potenzial

Bruck an der Großglocknerstraße, Österreich
Referenz-Nr.: 2481

Lagebeschreibung

Bruck an der Großglocknerstraße ist eine malerische Gemeinde in Österreich, die sich in einer beeindruckenden alpinen Umgebung befindet. Bekannt für ihre erstklassigen Skigebiete, bietet die Region das ganze Jahr über eine Vielzahl von Freizeitmöglichkeiten.
Der Zeller See ist ein beliebtes Ziel für Wassersportler und Erholungssuchende. Umgeben von einer eindrucksvollen Landschaft aus Bergen und Wäldern, bietet er Möglichkeiten zum Schwimmen, Segeln und Entspannen.
Die Hochalpenstraße führt durch eine dramatische Berglandschaft und bietet spektakuläre Ausblicke auf die umliegenden Gipfel und Täler, einschließlich des Großglockners, des höchsten Berges Österreichs.
Zusätzlich zu den natürlichen Sehenswürdigkeiten bietet Bruck an der Großglocknerstraße auch kulturelle Veranstaltungen und Sehenswürdigkeiten. Traditionelle Feste, Konzerte und Kunstausstellungen bereichern das kulturelle Leben der Gemeinde und bieten Einblicke in ihre Geschichte und Traditionen.

Wohnfläche
116.52 m²
Grundfläche:
294,00 m²
Zimmer
6
Bäder
2
Parkplatz
2
Baujahr
1968
Energieausweis
HWB 160.70 kWh/m²
Sollte es zu einem rechtskräftigen Kaufvertrag kommen, so wird ein Betrag von 3 % + 20 % MwSt. vom Kaufpreis in Rechnung gestellt.

Ausstattung

Das Einfamilienhaus in Bruck an der Großglocknerstraße erstreckt sich über eine Wohnfläche von ca. 116 m² und bietet eine Vielzahl von Räumen und Funktionen:

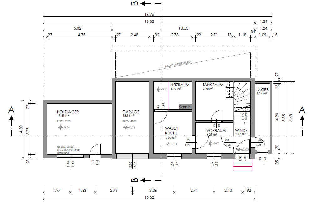
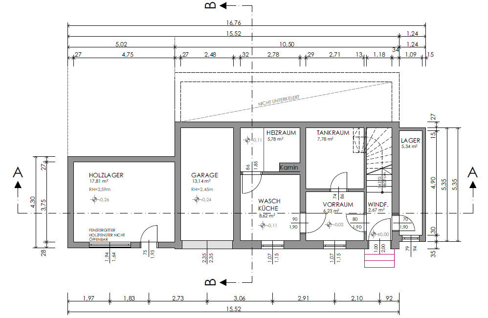
Im Erdgeschoss befinden sich eine Waschküche, ein Lagerraum, ein Öltankraum und ein Vorraum, die den funktionalen Kern des Hauses bilden.

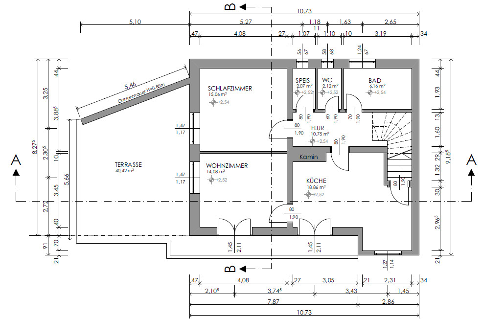
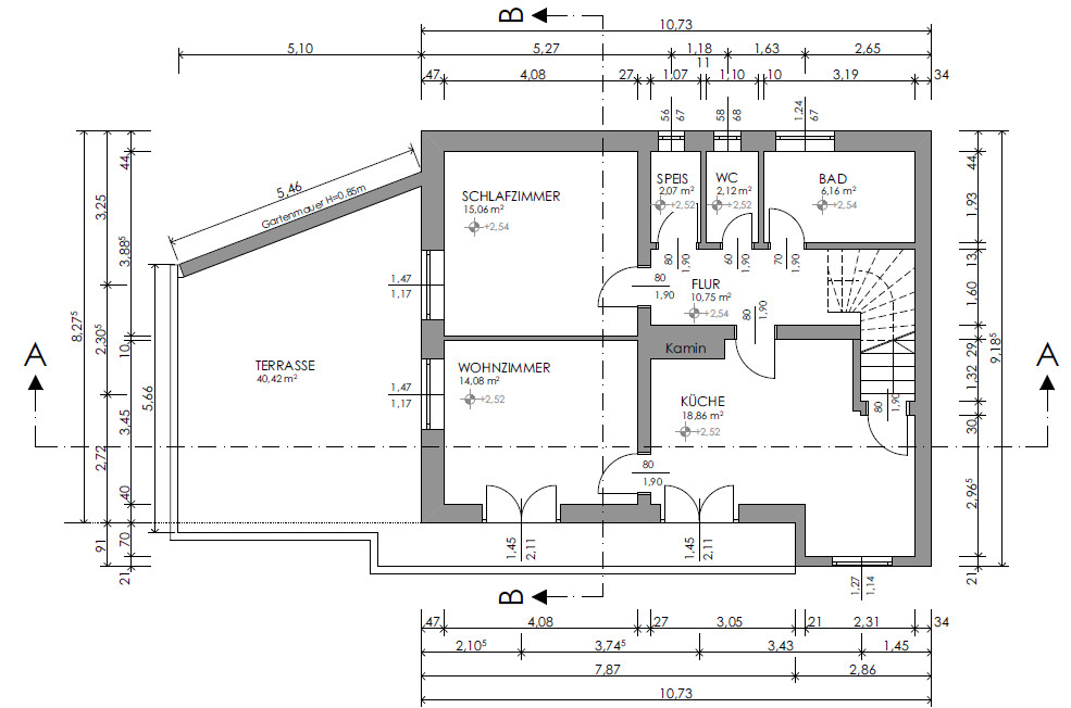
Das Obergeschoss beherbergt das Schlafzimmer, das Wohnzimmer, die Küche, eine Speisekammer, ein WC und ein Badezimmer, die alle darauf ausgelegt sind, Komfort und Funktionalität zu bieten. Dort findet man auch den Kaminanschluß für den Holzofenkamin. Hier findet man den Zugang zur großzügigen südseitigen Terrasse.

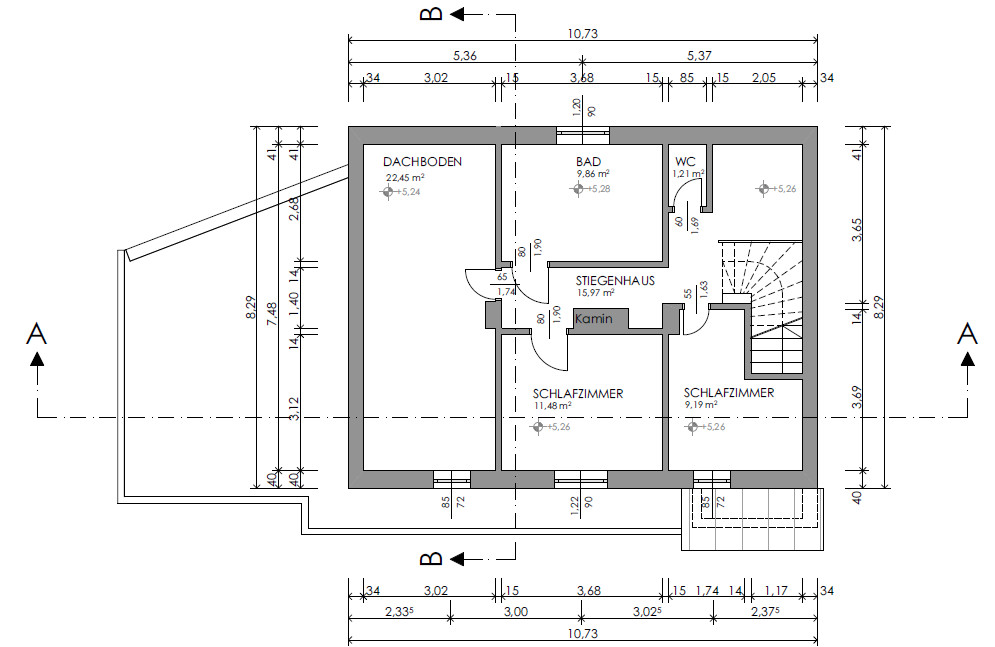
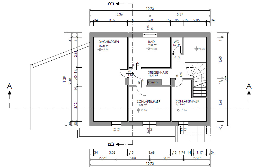
Das Dachgeschoß mit einem zusätzlichen Schlafzimmer, ein weiteres modernes Badezimmer mit Jacuzzi Badewanne, und ein seperatem WC sowie ausreichende Lagermöglichkeiten Runden das Haus ab.

Zusätzlich verfügt das Haus über eine Einzelgarage und 1 großzügigen freistehenden Parkplätze, sowie einen von außen begehbaren Lagerraum für die Aufbewahrung von Brennmaterial etc.

Überblick

  • Sep. WC
  • Balkon
  • Terrasse
  • Kamin
  • Waschraum
  • Gäste-WC

Jetzt Anfragen.
Wir beraten Sie gerne persönlich!

Persönliche Daten
Anmerkung
Persönliche Nachricht
Datenschutz
Diese Website ist durch reCAPTCHA geschützt und es gelten die Datenschutzbestimmungen und Nutzungsbedingungen von Google.

Sie müssen den Inhalt von reCAPTCHA laden, um das Formular abzuschicken. Bitte beachten Sie, dass dabei Daten mit Drittanbietern ausgetauscht werden.

Mehr Informationen