Einzigartige moderne Villa an der Riviera von Opatija

Opatija, Kroatien
Referenz-Nr.: 2496

Lagebeschreibung

Diese Luxusvilla liegt an einem der attraktivsten Reiseziele der Riviera von Opatija, nahe einer malerischen Küstenstadt, die für ihren schönen Kiesstrand und ihre ausgezeichnete Gastronomie bekannt ist. Nur 10 Autominuten vom Meer entfernt, bietet die Villa einfachen Zugang zu einigen der schönsten Strände der Region sowie zur charmanten Stadt Opatija mit ihrer lebendigen Kulturszene, gehobenen Restaurants und exklusiven Boutiquen.

Wohnfläche
296.00 m²
Grundfläche:
917,00 m²
Zimmer
5
Bäder
4
Parkplatz
4
Baujahr
2023
Sollte es zu einem rechtskräftigen Kaufvertrag kommen, so wird ein Betrag von 3 % + 20 % MwSt. vom Kaufpreis in Rechnung gestellt.

Ausstattung

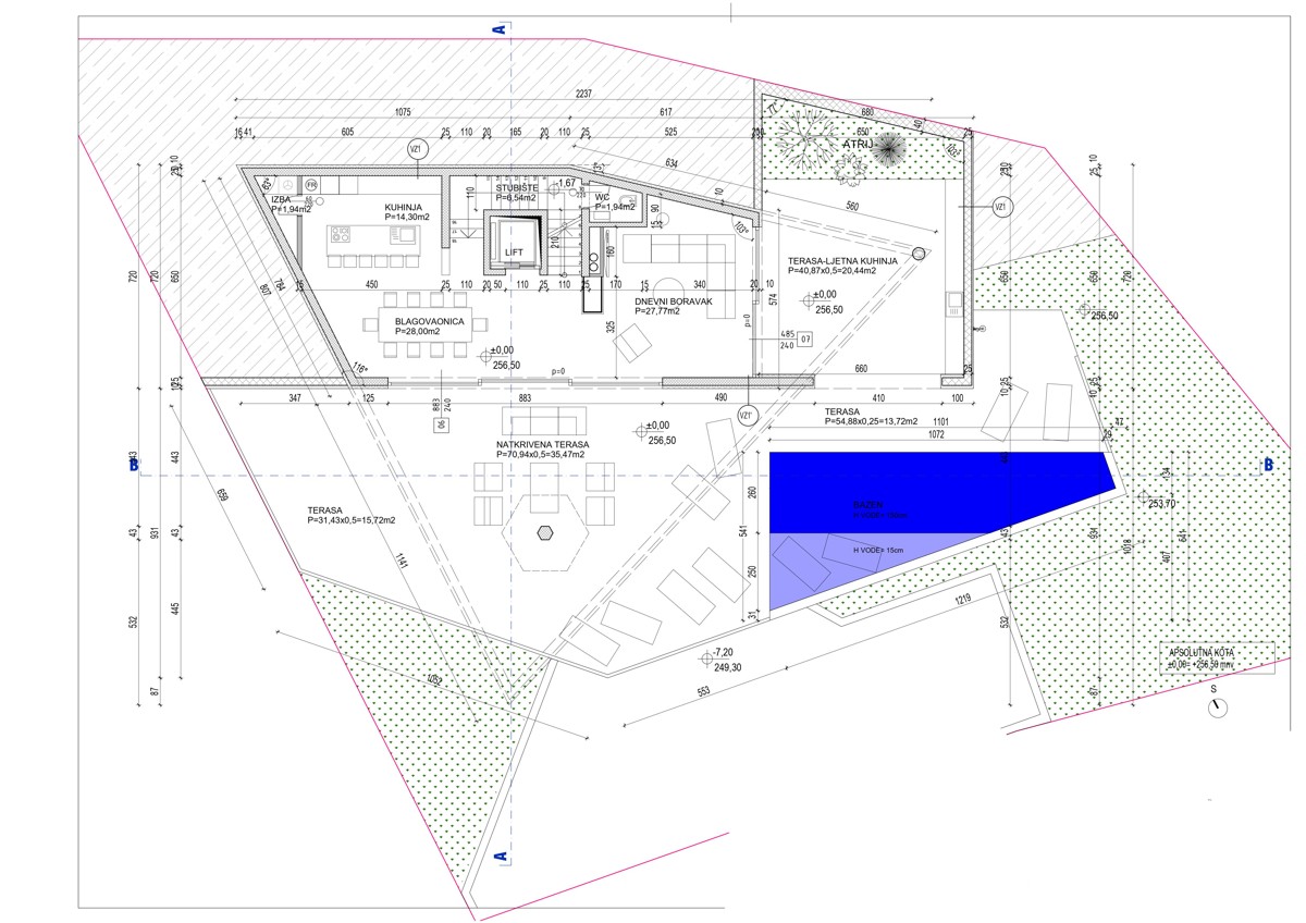
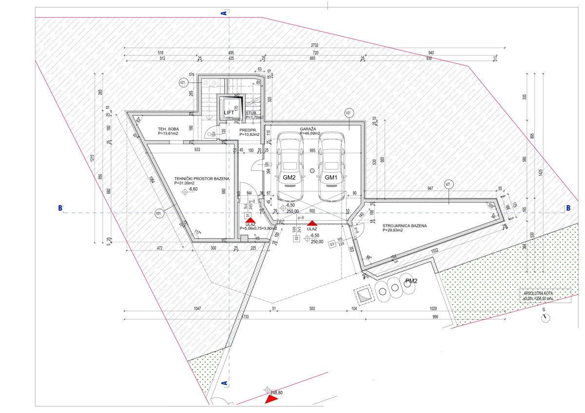
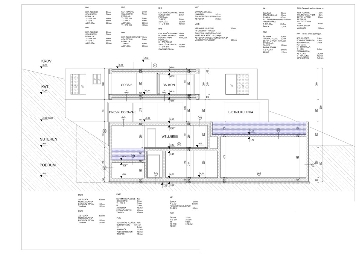
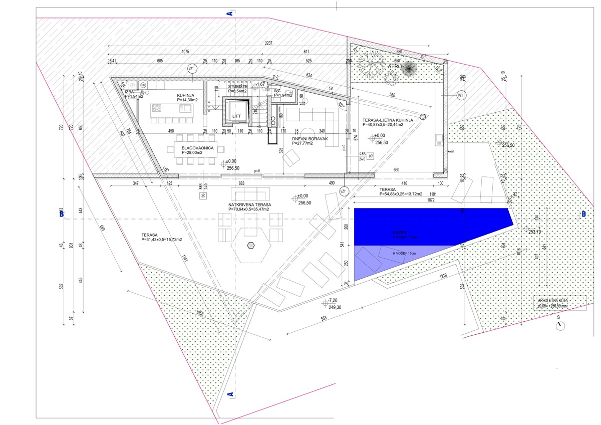
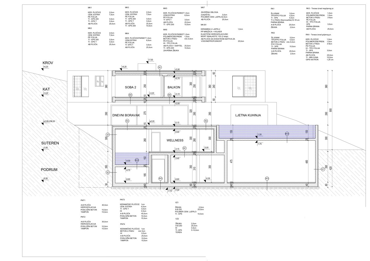
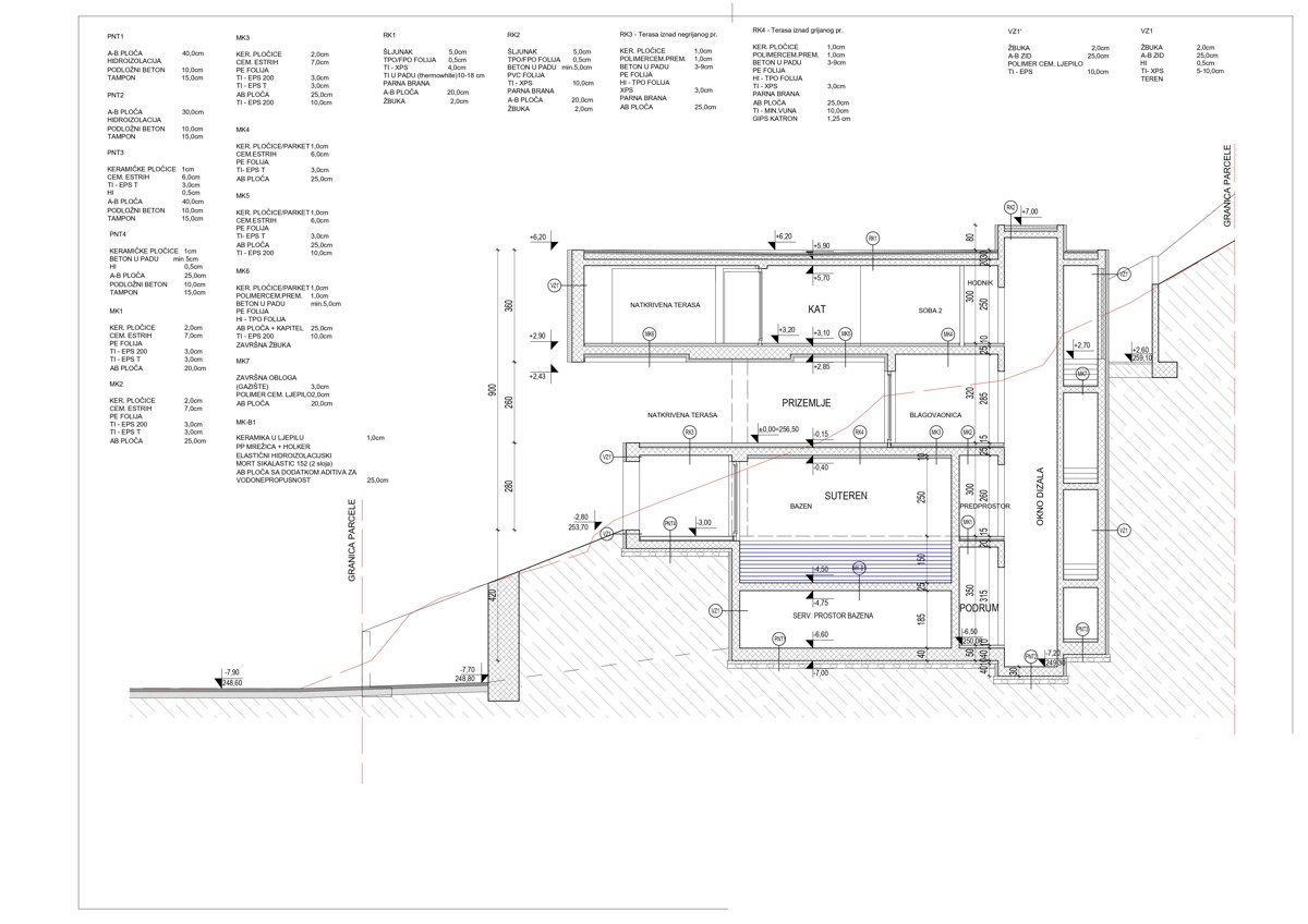
Diese atemberaubende, neu errichtete Villa mit dreieckigem Grundriss und minimalistischem Design erstreckt sich über vier Etagen, die alle durch einen Aufzug verbunden sind. Im Inneren dominieren natürliche Materialien, und mit drei beeindruckenden Terrassen sowie einem Innen- und Außenpool verkörpert sie einen subtilen Luxus, der sich harmonisch in die Umgebung einfügt.

Im Untergeschoss, wo sich der Eingang zur Villa befindet, gibt es eine Garage und einen Technikraum für die Fußbodenheizung, das Wasserkühlsystem und die Luftfeuchtigkeitsregelung. Darüber liegt ein luxuriöser Wellnessbereich mit finnischer und türkischer Sauna, einem beheizten Innenpool mit Hydromassage-Bereich, einem Fitnessstudio und Liegestühlen auf der Terrasse. Schiebetüren aus Faserzementplatten bieten Privatsphäre und ermöglichen ungestörtes Sonnenbaden.

Der erste Stock umfasst ein offenes Wohnzimmer mit voll ausgestatteter Küche und Essbereich, die nahtlos in eine überdachte Terrasse und ein Sonnendeck übergehen. Hier befindet sich ein großzügiger Essbereich im Freien mit Sommerküche und direktem Zugang zum Infinity-Pool, der einen ungehinderten Panoramablick auf die Bucht bietet.

Im zweiten Stock befinden sich vier Schlafzimmer, jedes mit eigenem Bad und einzigartiger Aussicht, die durch raumhohe Fenster betont wird und viel Sonnenlicht hereinlässt. Bewegliche Aluminiumschirme sorgen für Privatsphäre. Die dreieckige Form der Villa ermöglicht es, dass jedes Zimmer einen atemberaubenden Blick auf die Küste und die umliegenden Berge bietet.

Das Design und die Architektur der Villa ermöglichen fast ganzjährig ein Leben im Freien und bieten zauberhafte Orte zum Entspannen und Unterhalten mit Familie und Freunden. Ob als dauerhafter Wohnsitz oder Zweitwohnsitz – diese Immobilie vereint Komfort und Luxus perfekt.

Die Villa verfügt über eine Gesamtbaufläche von 805 m², davon 296 m² Innenfläche, 335 m² Terrassen, 47 m² Garage, 61 m² Technikräume, 31 m² beheizten Innenpool und 35 m² Infinity-Außenpool, auf einem 917 m² großen Grundstück.

Die Grunderwerbssteuer (GET) beträgt 3 % bei dieser Immobilie.

Überblick

  • Dusche
  • Sep. WC
  • Balkon
  • Terrasse
  • Fussbodenheizung
  • klimatisiert
  • Personenaufzugaufzug
  • Sauna
  • Pool
  • Waschraum
  • Sporteinrichtungen
  • Wellnessbereich
  • Gäste-WC

Jetzt Anfragen.
Wir beraten Sie gerne persönlich!

Persönliche Daten
Anmerkung
Persönliche Nachricht
Datenschutz
Diese Website ist durch reCAPTCHA geschützt und es gelten die Datenschutzbestimmungen und Nutzungsbedingungen von Google.

Sie müssen den Inhalt von reCAPTCHA laden, um das Formular abzuschicken. Bitte beachten Sie, dass dabei Daten mit Drittanbietern ausgetauscht werden.

Mehr Informationen