Luxusvilla mit Infinity-Pool in idyllischer Lage – Istrien

Labin, Kroatien
Referenz-Nr.: 2608

Lagebeschreibung

Die größte Halbinsel an der Adriaküste – Istrien – liegt im Nordwesten Kroatiens und gilt als wahre Quelle kultureller Vielfalt und landschaftlicher Schönheit. Mit ihrer malerischen Küstenlinie, charmanten Hügellandschaften und einer Gastronomie von internationalem Ruf zieht die Region Jahr für Jahr Besucher aus aller Welt an. Das milde Mittelmeerklima und die faszinierende Natur machen Istrien nicht nur zu einem beliebten Urlaubsziel, sondern auch zu einem gefragten Standort für Immobilieninvestitionen.

Diese exklusive Villa liegt an der Ostküste Istriens und bietet einen traumhaften Ausblick auf die umliegende Landschaft. Sie vereint Privatsphäre mit einer idealen Anbindung an die örtliche Infrastruktur – Einkaufsmöglichkeiten, Schulen, Kindergärten, medizinische Einrichtungen und öffentliche Verkehrsmittel befinden sich in bequemer Reichweite. Der nächste Strand ist in etwa 20 Minuten mit dem Auto erreichbar.

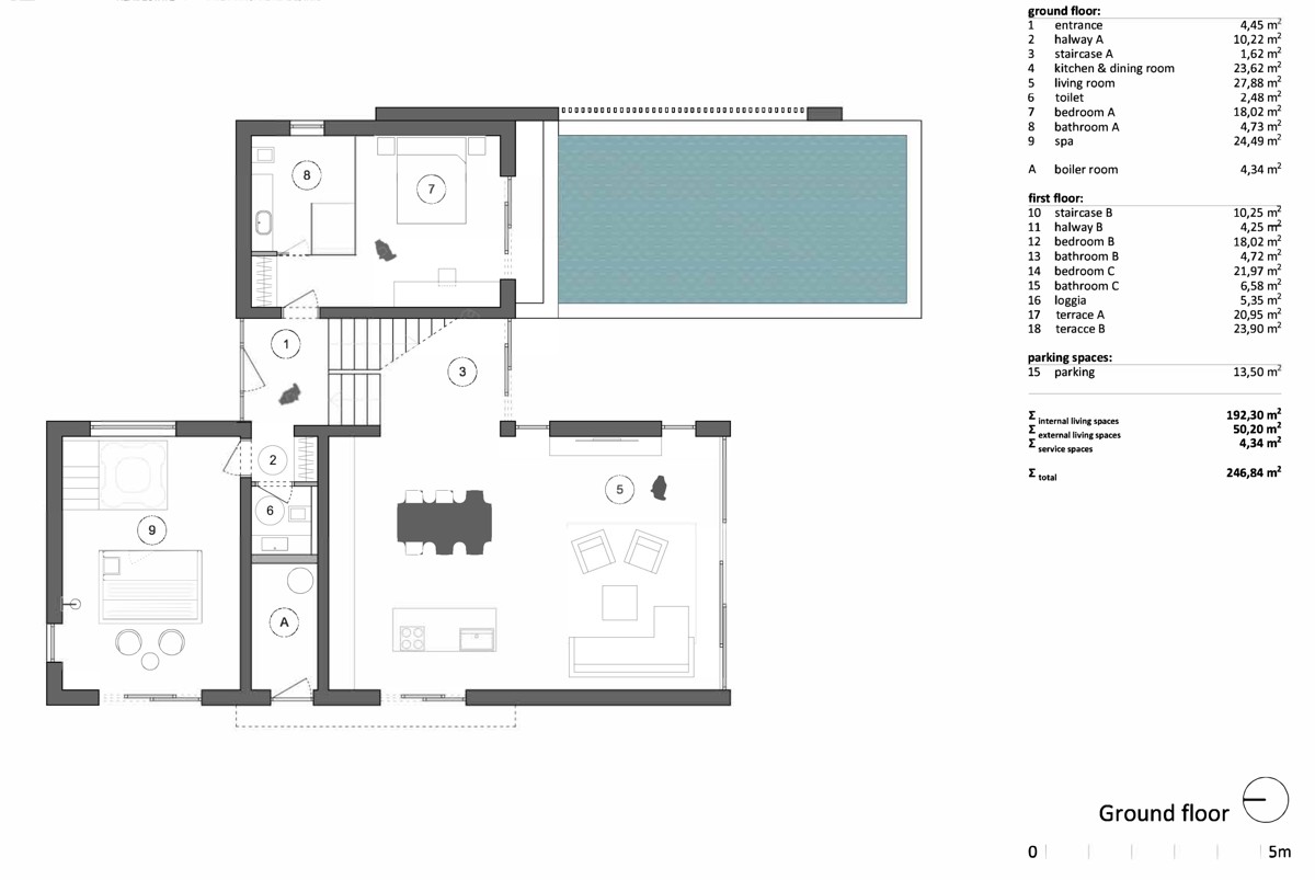
Ob als stilvoller Rückzugsort oder als renditestarke Kapitalanlage – diese Villa bietet eine hervorragende Möglichkeit, den Charme und Komfort Istriens zu genießen. Die Gesamtfläche der Immobilie beträgt 237 m² und umfasst 183 m² Wohnraum, 45 m² Terrassenfläche, einen 4 m² großen Abstellraum sowie einen 41 m² großen Außenpool.

Nutzfläche
202.00 m²
Grundfläche:
1.030,00 m²
Zimmer
4
Bäder
3
Parkplatz
3
Baujahr
2021
Sollte es zu einem rechtskräftigen Kaufvertrag kommen, so wird ein Betrag von 3 % + 20 % MwSt. vom Kaufpreis in Rechnung gestellt.

Ausstattung

Diese moderne Villa befindet sich auf einem großzügigen 1.030 m² großen Grundstück im idyllischen Istrien und erstreckt sich über zwei Etagen mit insgesamt 183 m² elegant gestaltetem Wohnraum. Ergänzt wird das Anwesen durch 45 m² Terrassenfläche sowie einen eindrucksvollen Infinity-Pool mit 41 m², der einen traumhaften Ausblick auf die umliegende Landschaft bietet.

Die Architektur überzeugt durch ein durchdachtes Konzept, das Innen- und Außenbereiche nahtlos miteinander verbindet und sich harmonisch in die natürliche Umgebung einfügt. Hochwertige Materialien und liebevoll ausgewählte Designelemente verleihen der Villa eine zeitlose Eleganz und unterstreichen zugleich ihre Funktionalität. Ein perfekter Ort für Erholung, gesellige Momente und ein entspanntes Leben im Einklang mit der Natur.

Der weitläufige, offen gestaltete Wohnbereich vereint ein elegantes Wohnzimmer, einen stilvollen Essbereich und eine exklusive italienische Designerküche, die mit hochwertigen Geräten aus deutscher Fertigung ausgestattet ist. Die Villa verfügt über drei großzügige Schlafzimmer – jedes mit eigenem en-suite Badezimmer – und bietet somit höchsten Komfort und Privatsphäre für Bewohner und Gäste. Das Hauptschlafzimmer besticht durch eine private Terrasse sowie ein luxuriöses Spa-Badezimmer mit großer begehbarer Dusche und freistehender Badewanne, von der sich ein spektakulärer Panoramablick eröffnet.

Ein zusätzlicher Wellnessbereich mit Sauna und Whirlpool sowie ein Gäste-WC im Erdgeschoss runden das durchdachte Raumkonzept ab.

Die gesamte Einrichtung wurde mit edlen Designermöbeln aus Italien ausgestattet. Hohe Decken von 3,3 Metern und großflächige Fensterfronten im Wohnbereich sorgen für lichtdurchflutete Räume und ein offenes, angenehmes Wohngefühl.

Auch der Außenbereich lässt keine Wünsche offen: Weitläufige Terrassenflächen, ein privater Infinity-Pool und ein überdachter Essbereich mit eingebautem Grill bieten ideale Voraussetzungen für entspannte Stunden im Freien. Der mediterran gestaltete Garten lädt zum Verweilen ein und ist mit einem automatischen Bewässerungssystem, dekorativer Beleuchtung sowie einem umzäunten Grundstück mit elektrischem Schiebetor ausgestattet. Ein modernes Sicherheitssystem sowie automatische Außenbeleuchtung sorgen für zusätzlichen Komfort und Sicherheit.

Überblick

  • Sep. WC
  • Balkon
  • Terrasse
  • Sauna
  • Pool
  • Wellnessbereich
  • Gäste-WC

Jetzt Anfragen.
Wir beraten Sie gerne persönlich!

Persönliche Daten
Anmerkung
Persönliche Nachricht
Datenschutz
Diese Website ist durch reCAPTCHA geschützt und es gelten die Datenschutzbestimmungen und Nutzungsbedingungen von Google.

Sie müssen den Inhalt von reCAPTCHA laden, um das Formular abzuschicken. Bitte beachten Sie, dass dabei Daten mit Drittanbietern ausgetauscht werden.

Mehr Informationen