Neulichtenberg | Österreich

Panoramatraum über Linz – Stilvoll saniertes Zuhause in exklusiver Ruhelage

testNUTZFLÄCHE131,24
ZIMMER4
BÄDER1
Kaufpreis639.000
NUTZFLÄCHE
131.24
Zimmer
4
Bäder
1
KAUFPREIS
€ 639.000
Referenz-Nr.: 2751

Lagebeschreibung

Dieses Einfamilienhaus in Neulichtenberg befindet sich in begehrter Stadtrandlage von Linz (ca. 10 Autominuten entfernt), unweit der Koglerau – einem beliebten Naherholungsgebiet und Tor zum Mühlviertel. Die erhöhte Hanglage bietet einen schönen Panoramablick über Linz, das Donautal und die umliegende Hügellandschaft.

Das Umfeld ist geprägt von Wiesen und Grünflächen und garantiert Ruhe, Privatsphäre sowie hohe Lebensqualität. Gleichzeitig erreichen Sie das Linzer Stadtzentrum in wenigen Minuten und profitieren von einer ausgezeichneten Infrastruktur mit vielfältigen Einkaufs-, Bildungs- und Freizeitmöglichkeiten.

Nutzfläche
131.24 m²
Grundfläche:
796,00 m²
Zimmer
4
Bäder
1
Parkplatz
2
Sollte es zu einem rechtskräftigen Kaufvertrag kommen, so wird ein Betrag von 3 % zzgl. 20 % MwSt. vom Kaufpreis in Rechnung gestellt.

Marie-Estelle Gastberger

Immobilienberater

Ausstattung

Dieses sanierte Einfamilienhaus in Neulichtenberg vereint moderne Wohnqualität, eine durchdachte Architektur und eine der schönsten Aussichtslagen nahe Linz. Auf einem großzügigen Grundstück mit ca. 796 m² genießen Sie eine ruhige Hanglage mit beeindruckendem Panoramablick.

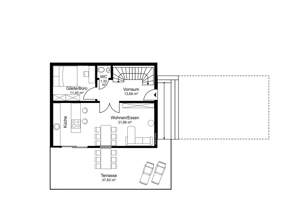
Das Herzstück des Hauses bildet der offen gestaltete Wohn- und Essbereich im Erdgeschoss, der durch großzügige Fensterflächen in einem hellen, freundlichen Ambiente erstrahlt. Von hier aus gelangen Sie direkt auf die weitläufige Terrasse mit perfekter Südausrichtung, die ideale Voraussetzungen für entspannte Stunden im Freien bietet.

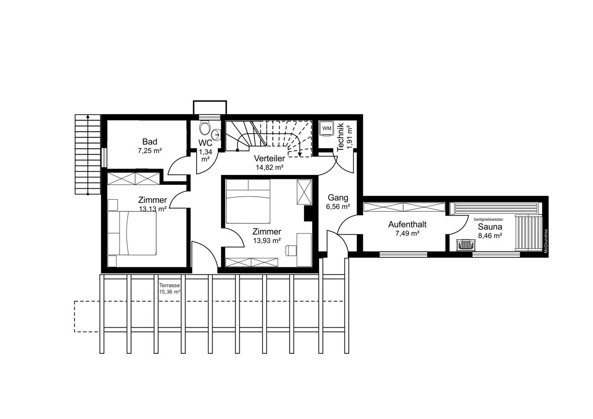
Im Untergeschoss befinden sich zwei vollwertige Schlafzimmer, ein Badezimmer und ein separates WC. Ergänzend steht eine großzügige Fläche zur Verfügung, die sich beispielsweise für die Realisierung eines exklusiven Saunabereichs, Fitnessraum oder Weinkeller eignet und ganz nach Ihren persönlichen Vorstellungen gestaltet werden kann.

Das Haus wurde umfassend technisch modernisiert – inklusive Fenster, Dämmung, Dach sowie zeitgemäße Installationen. Die Gartengestaltung wurde bewusst offengehalten, um Ihnen maximale Gestaltungsfreiheit zu ermöglichen.

Das Haus befindet sich kurz vor der Fertigstellung und wird schlüsselfertig übergeben. Lediglich die ca. 15,95 m² Fläche im Untergeschoss bleibt offen gestaltet und bietet die Möglichkeit, diese ganz nach den eigenen Vorstellungen auszubauen – zum Beispiel als Saunabereich, Fitnessraum oder Weinkeller.

Ein Carport, ein Wintergarten sowie zusätzliche Stellplätze sind baubehördlich bereits genehmigt und können bei Bedarf selbst umgesetzt werden.

Besichtigungstermine sind selbstverständlich bereits jederzeit möglich. Für weitere Unterlagen oder Informationen stehen wir Ihnen gerne auf Anfrage zur Verfügung.

Wir weisen darauf hin, dass zwischen dem Vermittler und dem Abgeber ein familiäres bzw. wirtschaftliches Naheverhältnis besteht.

weiterlesen

Überblick

  • Sep. WC
  • unterkellert
  • Gäste-WC

Grundriss

Jetzt Anfragen.
Wir beraten Sie gerne persönlich!

Persönliche Daten
Anmerkung
Persönliche Nachricht
Datenschutz
Diese Website ist durch reCAPTCHA geschützt und es gelten die Datenschutzbestimmungen und Nutzungsbedingungen von Google.

Ihr Haus bewerten lassen

Beginnen Sie jetzt mit der Online-Bewertung und tragen Sie die Daten Ihrer Immobilie ein.

Ihr Haus bewerten lassen

Beginnen Sie jetzt mit der Online-Bewertung und tragen Sie die Daten Ihrer Immobilie ein.

Adresse der Immobilie
Art des Hauses
Zusätzliche Merkmale
Bis wann wünschen sie sich den Verkauf abgewickelt zu haben?
Persönliche Daten
Rechtlich relevante Informationen

Diese Website ist durch reCAPTCHA geschützt und es gelten die Datenschutzbestimmungen und Nutzungsbedingungen von Google.