Eingebettet im Herzen von Bad Aussee entstehen diese hochwertigen Neubauwohnungen, die für ein außergewöhnliches Wohngefühl in Kombination mit angenehmer Entspannung mitten im Herzen des Salzkammerguts sorgen. Durch die zentrale Lage sind Restaurants, Cafés, Geschäfte, Supermarkt und Kurpark fußläufig bequem erreichbar.
Der herrliche und traditionsreiche Ort Bad Aussee befindet sich inmitten der atemberaubenden Kulisse des Salzkammerguts. Wunderschöne Ausflugsziele garantieren Entspannung inmitten der imposanten Bergwelt und den türkis-grünen Seen Grundl- und Altausseer See.
Zudem gibt es zahlreiche Events, die Tradition und Moderne perfekt kombinieren. Lassen Sie sich von Festivals, Konzerten, traditionellen Handwerksmärkten oder auch dem beliebten Narzissenfest faszinieren. Das farbenfrohe Spektakel zelebriert die einzigartige Schönheit der Narzissenblüte und lockt Besucher aus nah und fern an.
Weitere Ausflugsziele wie das über die Landesgrenzen bekannte Hallstatt oder die vielen beliebten
Seen des Salzkammergutes wie Traun-, Atter-, Mond-, Fuschl- oder Wolfgangsee sind ebenso mit dem Pkw in rund 40 – 70 Autominuten erreichbar und sorgen für viel Abwechslung.
Der nächste internationale Flughafen befindet sich in Salzburg und ist rund 90 km entfernt.
Neubauprojekt AUSSEER RESIDENZEN!
Erleben Sie modernen Wohnkomfort in einer der schönsten Regionen Österreichs!
Dieses komfortable Neubauprojekt im Herzen von Bad Aussee bietet Ihnen absolut flexible Nutzungsmöglichkeiten. Ob Zweitwohnsitz oder touristische Vermietung – Sie haben die freie Wahl! Denn diese exklusive Immobilie im Zentrum ermöglicht Ihnen die perfekte Kombination aus einem Zweitwohnsitz und einer attraktiven Investitionsmöglichkeit durch touristische Vermietung.
Es stehen 35 Appartements mit unterschiedlichen Größen und Wohnflächen zwischen 40,29 m² bis 168,85 m² und 2 Gewerbeimmobilien zur Verfügung. Der Startpreis für die kleinste Einheit liegt bei 229.900 €. Zu jeder Einheit gibt es ein privates Kellerabteil für mehr Stauraummöglichkeiten und bei Bedarf steht Ihnen mit Aufpreis ein Tiefgaragenstellplatz oder ein Carportplatz zur Verfügung. Insgesamt gibt es 26 Tiefgaragenstellplätze und 3 Carportplätze bei dem Neubauprojekt.
Highlights:
– Top-Lage: Im Zentrum von Bad Aussee gelegen, mit direkter Nähe zu Geschäften, Restaurants und kulturellen Einrichtungen.
– Zweitwohnsitzmöglichkeit: Ideal als persönlicher Rückzugsort oder Feriendomizil im idyllischen und entspannten Salzkammergut.
– Touristische Vermietung: Profitieren Sie von der Möglichkeit, Ihre Immobilie für die touristische Vermietung freizugeben – eine attraktive Einkommensquelle.
– Parkmöglichkeiten: Sie können zusätzlich ein Carport als auch einen Tiefgaragenstellplatz erwerben. So können Sie komfortabel, ohne Parkplatzsuche und vor Sonne, Regen oder Schnee geschützt, Ihr Fahrzeug direkt am Haus oder in der Tiefgarage abstellen.
– Moderne Architektur: Hochwertige Bauweise und durchdachte Grundrisse, die modernes Wohnen mit einem charmanten Flair verbinden.
– Exzellente Ausstattung: Hochwertige Materialien, Fußbodenheizung, großzügige Fensterfronten für lichtdurchflutete Räume und edle Parkettböden.
– Freiraum genießen: Jede Wohnung verfügt über einen Balkon, eine Terrasse oder einen Gartenanteil, um die umliegende Natur & frische Luft in vollen Zügen zu genießen.
– Nachhaltigkeit: Die Bauweise erfüllt höchste ökologische Standards und sorgt durch innovative Heizsysteme und Wärmedämmung für niedrige Betriebskosten.
– Flexibles Wohnkonzept: Verschiedene Wohnungsgrößen und Grundrisse für unterschiedliche Lebensphasen, ob als Single, Paar oder Familie.
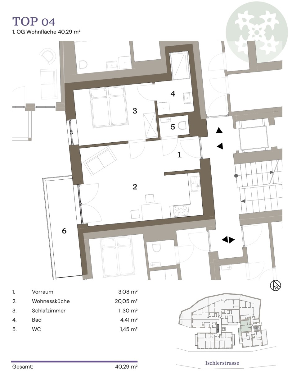
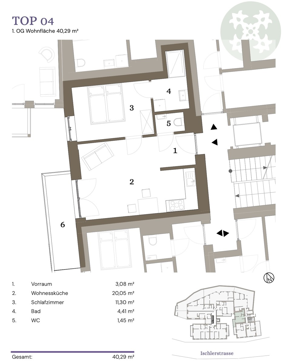
Das Appartement „TOP-4“ befindet sich im 1. Obergeschoss und ist bequem per Lift erreichbar. Sollten Sie einen Parkplatz in der Tiefgarage erwerben, fährt Sie der Lift auch von dort direkt in die Etage Ihrer Wohnung.
Beim Betreten gelangen Sie in den geräumigen Vorraum, von dem Sie sowohl zum praktischen Gäste-WC als auch zu dem Schlafzimmer, seinem modernen Bad und dem großzügigen Wohn-Küchen-Essbereich gelangen. Ein komfortabler Balkon, der vom Wohnzimmer aus begehbar ist, sorgt für angenehm frische Luft und lädt zu schönen Ausblicken ein.
Die Flexibilität der Nutzungsmöglichkeiten der Immobilie, die zentrale Lage im idyllischen und beliebten Ort Bad Aussee sowie die unmittelbare Nähe zu den wunderschönen Seen (Altausseer See & Grundlsee jeweils ca. 5 km entfernt) machen die Wohnungen dieses Projekts sehr begehrt.
Nutzen Sie diese einzigartige Gelegenheit und sichern Sie sich Ihre Traumimmobilie in einer der gefragtesten Regionen Österreichs und genießen Sie jederzeit den Ausblick auf die umliegende Berglandschaft direkt von Ihrem neuen Zuhause aus.
Die Immobilie wird teilweise neu errichtet, ebenso werden gewisse Bereiche generalsaniert. Informationen dazu können Sie gerne aus der Preisliste entnehmen.
Ein Heizsystem, welches die Temperatur reguliert, wird mittels einer zentralen Wärmeübergabestation für das gesamte Gebäude mit Zirkulationsleitung geregelt. Eine detaillierte Bau- und Ausstattungsbeschreibung sowie die Preisliste der Einheiten erhalten Sie gerne auf Anfrage!
Die Immobilie wird schlüsselfertig übergeben.
Das Interieur ist nicht im Kaufpreis inkludiert. Bei den angegebenen Bildern handelt es sich um Visualisierungen, um eine Vorstellung für das fertige Projekt zu bekommen. Hier können geringfügige Abweichungen zur tatsächlichen Ausführung entstehen.
























































Sie müssen den Inhalt von reCAPTCHA laden, um das Formular abzuschicken. Bitte beachten Sie, dass dabei Daten mit Drittanbietern ausgetauscht werden.
Mehr Informationen