Die Anlage des Park Residences befindet sich in einer beliebten Lage, nur wenige Schritte vom Seeufer und vom historischen Zentrum von Salo entfernt. Genießen Sie die unvergleichliche Schönheit des Gardasees, während Sie in einer ruhigen und privaten Umgebung residieren.
Das südwestlich des Gardasees gelegene Salo bietet Ihnen eine charmante Altstadt mit erstklassigen Restaurants, exklusiven Boutiquen und einer lebendigen Kulturszene.
Der Ort ist ebenfalls ein idealer Startpunkt, um die Schönheiten der Umgebung zu erkunden. Die malerische Straße entlang des Westufers des Gardasees führt Sie vorbei an urigen Dörfern bis nach Riva del Garda im Norden. Der lebhafte, mondäne Urlaubsort Riva liegt umgeben von mächtigen Bergen an der schmalen Nordspitze des Lago di Garda und ist zugleich der zweitgrößte Ort am Gardasee. Er ist ein beliebter Spot für Wassersportler wie Windsurfer und Kiter. Im Süden des Sees befinden sich weitere herrliche Ausflugsziele wie zum Beispiel Sirmione mit seinem imposanten Stadtschloss, seinen Thermalbädern und Grotten des Catull. Auch das historische Verona ist nicht weit entfernt. Entdecken Sie idyllische Dörfer, genießen Sie die kulinarischen Highlights der italienischen Küche und lassen Sie sich von der Schönheit des Gardasees begeistern.
IHR FERIENDOMIZIL IM WUNDERSCHÖNEN NORDITALIEN
An einem der begehrtesten Seeufer Italiens befindet sich das bereits vierte Falkensteiner Premium Living-Projekt in der finalen Phase seiner Entwicklung. Baubeginn war im Frühjahr 2024.
Die hochwertig ausgestatteten Residenzen befinden sich innerhalb eines Falkensteiner Resorts inklusive des Premium-Hotels. So genießen Sie die Annehmlichkeiten eines international ausgezeichneten 5-Sterne-Resorts und werden Eigentümer einer designten Immobilie des Architekten Matteo Thun mit Zweitwohnsitz-Genehmigung.
Das Penthouse „Olmo“ ist mit 115 m² perfekt geeignet für 6 Personen. Insgesamt stehen 3 gemütliche Schlafzimmer mit eigenen Bädern, eine Garderobe, ein zusätzliches Gäste-WC und ein Waschmaschinenraum mit Abstellmöglichkeiten zur Verfügung. Hinzu kommt ein heller Wohn-Küchen-Essbereich, der umrandet wird von einer geräumigen Terrasse.
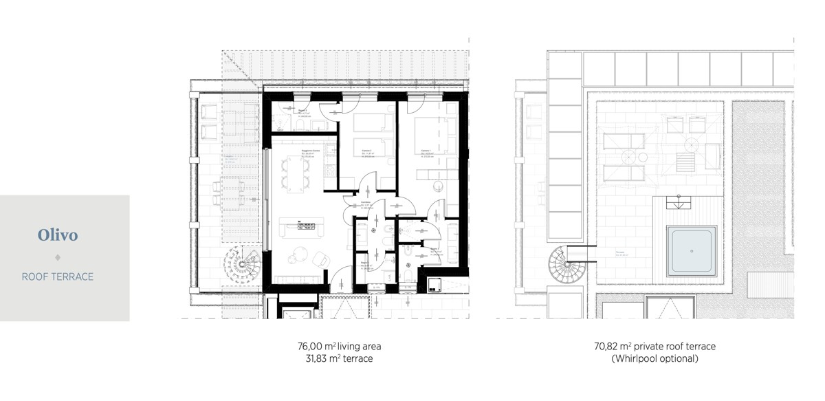
Eine private Dachterrasse bietet die Möglichkeit für einen eigenen Pool oder Wellness-Bereich.
Dieses Penthouse verkörpert Luxus, Stil und Komfort und bietet eine einzigartige Gelegenheit, einen luxuriösen Lebensstil in einer exklusiven Umgebung zu genießen.
Wählen Sie zwischen zwei Ausstattungsvarianten aus der Feder des internationalen Büros Thun und ersparen Sie sich aufwändige Koordination und Ärger. Genießen Sie anstatt dessen Ihren Urlaub von der ersten Minute an.
Der Netto Kaufpreis für das Objekt umfasst den Appartementpreis sowie das Interieur. Hinzu kommt der Preis für einen Tiefgaragenparkplatz in Höhe von € 55.000 bzw. € 95.000 netto.
Das Park Residences Lake Garda von Falkensteiner bietet Ihnen nicht nur einen luxuriösen Rückzugsort, sondern Sie genießen auch den Vorteil des Care-Services für Ihre Wohnung in Zeiten Ihrer Abwesenheit. Diese erstklassige Investitionsmöglichkeit in eine Zweitwohnsitz-Wohnung bietet Ihnen die Möglichkeit, das Objekt ganzjährig zu nutzen oder es bei Abwesenheit zu vermieten, wobei Sie von einer attraktiven Rendite profitieren.
Bei Zweitwohnsitz Nutzung ist zum Immobilienkaufpreis 10% USt zu berechnen und 22% auf die Ausstattung.
Bei touristischer Vermietung können die USt als Vorsteuer berücksichtigt werden.
Über die jeweiligen Vorteile beraten wir Sie gerne in einem persönlichen Gespräch!
Erleben Sie Ihr zukünftiges Zuhause hautnah – ein Musterzimmer steht für Sie bereit und lädt zu einer inspirierenden Besichtigung vor Ort ein.
PROVISIONSFREI FÜR DEN KÄUFER!


































Sie müssen den Inhalt von reCAPTCHA laden, um das Formular abzuschicken. Bitte beachten Sie, dass dabei Daten mit Drittanbietern ausgetauscht werden.
Mehr Informationen