Dorfgastein | Österreich

Neubauprojekt Salamander – Gartenwohnung Top 1

testWOHNFLÄCHE79,42
ZIMMER3
BÄDER1
Kaufpreis525.500
WOHNFLÄCHE
79.42
Zimmer
3
Bäder
1
KAUFPREIS
€ 525.500
Referenz-Nr.: 2408_1

Lagebeschreibung

Nur einen Katzensprung entfernt zum Zentrum Dorfgasteins befindet sich das Neubauprojekt in komfortabler Zentrumslage. Genießen Sie die fußläufige Erreichbarkeit zu nahezu allen Annehmlichkeiten des Ortes. Egal ob Supermarkt, Gasthaus, Erlebnisspielplatz oder Bahnhof – in nur wenigen Gehminuten sind sie am Ziel und ersparen sich eine lästige Parkplatzsuche.
Inmitten des Gasteinertals erstrahlt Dorfgastein als verträumtes Dorf, umgeben von einer Kulisse aus imposanten Bergen und üppigen grünen Landschaften.
Dorfgastein ist nicht nur ein Ort, sondern ein Erlebnis zu jeder Jahreszeit. Im Winter lockt die glitzernde Schneelandschaft Skifahrer und Snowboarder aus aller Welt an. Die perfekt präparierten Pisten des Gasteinertals bieten unvergessliche Abfahrten, während die Gondelbahn in Dorfgastein einen mühelosen Zugang zu diesem Winterparadies ermöglicht.
Doch auch im Sommer erblüht Dorfgastein zu neuem Leben. Die umliegenden Berge laden zu Wanderungen entlang idyllischer Pfade ein, die zu spektakulären Aussichtspunkten führen. Mountainbiker finden hier ihr eigenes Paradies mit abwechslungsreichen Strecken für jedes Können.
Abseits der Aktivitäten in der Natur bietet Dorfgastein eine lebendige Gemeinschaft und gelebte Traditionen. Die Einheimischen heißen Besucher herzlich willkommen, und bei traditionellen Festen sowie in den gemütlichen Gasthäusern lässt sich die regionale Kultur hautnah erleben.
Ein besonderes Highlight ist die Nähe zur Gasteiner Therme – ein Ort der Erholung und Entspannung mit seinen heilenden Thermalquellen, der nur einen Steinwurf entfernt liegt.
Dorfgastein ist mehr als nur ein Ort zum Verweilen. Es ist ein Erlebnis, das die Schönheit der Natur, die Vielfalt der Aktivitäten und die herzliche Gastfreundschaft in einer einzigartigen alpinen Umgebung vereint. Hier findet jeder Besucher eine Fülle an Möglichkeiten, um die Schönheit der Jahreszeiten in vollen Zügen zu genießen.

Wohnfläche
79.42 m²
Zimmer
3
Bäder
1
Parkplatz
1
Baujahr
2023
Energieausweis
HWB 29.00 kWh/m²
Sollte es zu einem rechtskräftigen Kaufvertrag kommen, so wird ein Betrag von 3% + 20% MwSt vom Kaufpreis in Rechnung gestellt.

Ausstattung

In Dorfgastein erwartet Sie ein faszinierendes Neubauprojekt, das die perfekte Symbiose aus zeitgemäßem Wohnen und der malerischen Schönheit der Alpenlandschaft bildet. Dieses architektonische Juwel bietet insgesamt 13 exklusive Wohnungen, die sich über vier Etagen verteilen. Das vielfältige Angebot an Wohnungsgrößen beginnt bei einem Wohnraum von 44 m² bis hin zu geräumigen 122 m². So wird jedem Lebensstil und Bedürfnis Rechnung getragen.

Diese Wohnung ist bereit Ihr neues Zuhause zu werden – ein Erstbezug, der mit modernem Wohnkomfort und einem frischen, einladenden Ambiente überzeugt.

Eine der besonderen Vorzüge dieses Projekts sind die Erdgeschoss- und Untergeschosswohnungen, die mit privaten Gärten zwischen 37 und 133 m² Fläche ausgestattet sind. Alle anderen Wohnungen verfügen über einen Balkon und/oder eine Terrasse mit Größen von 10 bis 68 m². Diese idyllischen Außenbereiche bieten einen persönlichen Rückzugsort im Freien, um die angenehme alpine Luft zu genießen, gesellige Momente zu erleben oder auch einfach nur zu entspannen.

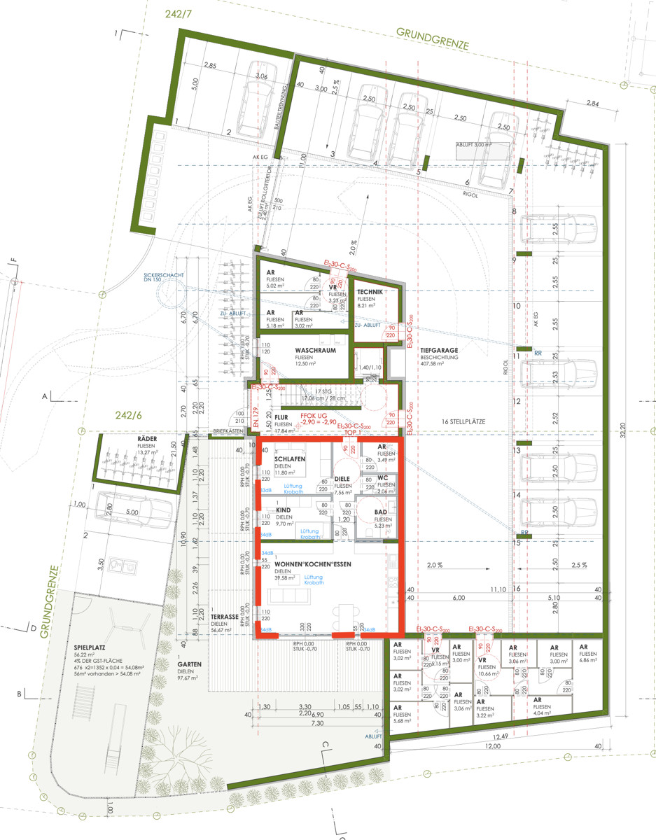
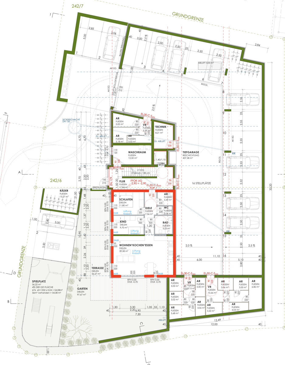
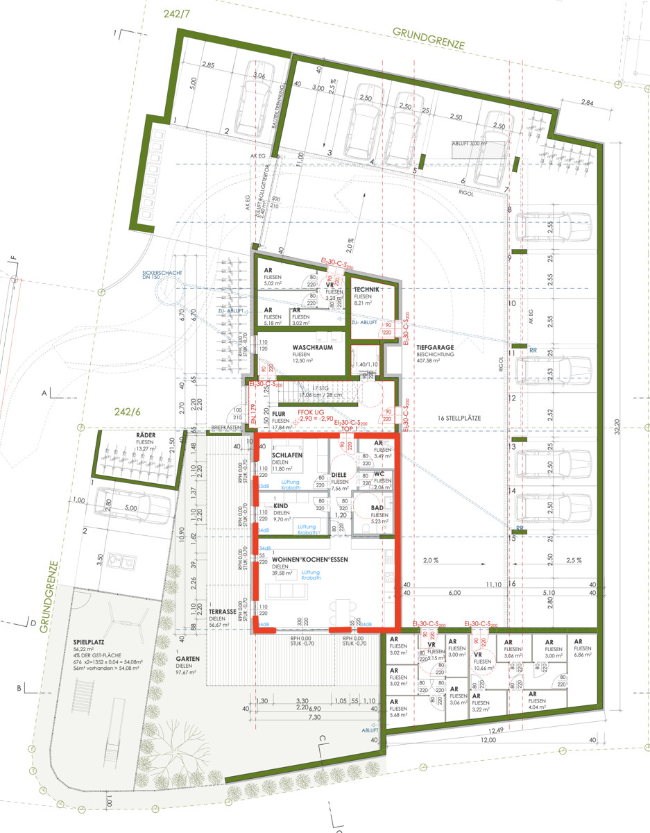
Die Wohnung Top 1 verfügt mit einer Wohnfläche von ca. 80 m² über 2 Schlaf- und ein Badezimmer. Sie befindet sich im Untergeschoss, jedoch hat sie aufgrund der Hanglage des Hauses einen ca. 97 m² großen Garten.

Diese Wohnanlage besticht nicht nur durch individuelle Wohneinheiten, sondern auch durch durchdachte Gemeinschaftseinrichtungen, die den Lebensstandard erhöhen. Ein eigener Wasch- und Trockenraum steht allen Bewohnern zur Verfügung, um den Alltag zu erleichtern. Fahrradabstellplätze sind vorhanden und ein Personenlift gewährt bequemen Zugang zu sämtlichen Stockwerken. Für Kinder gibt es einen liebevoll gestalteten Spielplatz, der Raum für Freude und Aktivitäten im Freien bietet.

Die Preisliste der Wohnungen lassen wir Ihnen gerne auf Anfrage zukommen, um Ihnen einen transparenten Überblick zu bieten. Diese Wohnmöglichkeiten in Dorfgastein vereinen modernen Wohnkomfort mit der natürlichen Schönheit der Umgebung und bieten eine lebenswerte Atmosphäre, die sowohl Ruhe als auch aktive Erholung ermöglicht. Willkommen in Ihrem neuen Zuhause, wo Lebensqualität und Alpenidylle verschmelzen.

Zu jeder Einheit gehört ein Abstellraum im Untergeschoss.
Die Immobilie wird schlüsselfertig ohne Einrichtung übergeben.

Ein Tiefgaragenplatz kann für 24.500 € zusätzlich erworben werden.

weiterlesen

Überblick

  • Sep. WC
  • Keller
  • Waschraum
  • Gäste-WC

Grundriss

Video

Verfügbare Einheiten

Jetzt Anfragen.
Wir beraten Sie gerne persönlich!

Persönliche Daten
Anmerkung
Persönliche Nachricht
Datenschutz
Diese Website ist durch reCAPTCHA geschützt und es gelten die Datenschutzbestimmungen und Nutzungsbedingungen von Google.

Ihr Haus bewerten lassen

Beginnen Sie jetzt mit der Online-Bewertung und tragen Sie die Daten Ihrer Immobilie ein.

Ihr Haus bewerten lassen

Beginnen Sie jetzt mit der Online-Bewertung und tragen Sie die Daten Ihrer Immobilie ein.

Adresse der Immobilie
Art des Hauses
Zusätzliche Merkmale
Bis wann wünschen sie sich den Verkauf abgewickelt zu haben?
Persönliche Daten
Rechtlich relevante Informationen

Diese Website ist durch reCAPTCHA geschützt und es gelten die Datenschutzbestimmungen und Nutzungsbedingungen von Google.