FERIENIMMOBILIEN IN KROATIEN
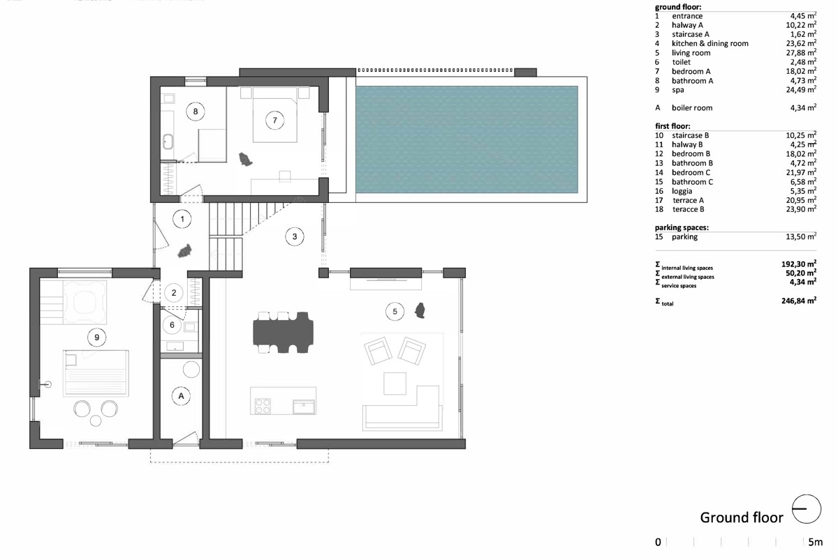
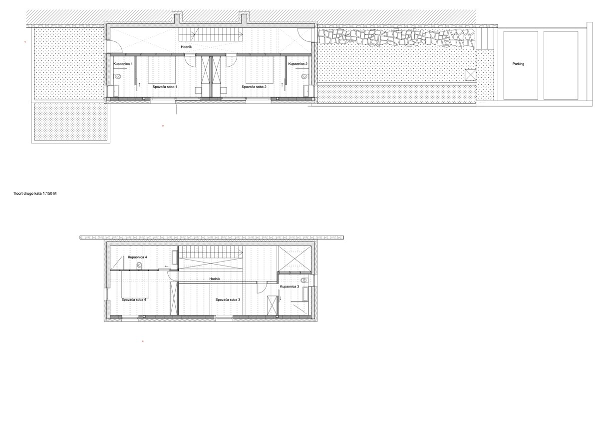
Falkensteiner Aurora Residences – 4-Zimmer-Maisonettewohnung Oro
176.25 m²
4
3













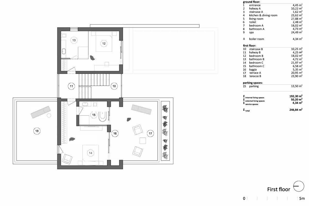
Falkensteiner Aurora Residences – 4-Zimmer-Maisonettewohnung Oro
176.25 m²
4
3
Traumimmobilien mit mediterranem Flair
Mit seinen verträumten Buchten, den gastfreundlichen Menschen, romantischen Altstädten und dem glasklaren Meer ist Kroatien ein Highlight zum Urlauben und Leben. Unsere wunderschönen Ferienimmobilien in Kroatien lassen keine Wünsche offen. In schönster Lage bieten Sie Ihnen die Möglichkeit eine der über 1000 Inseln des Landes zu entdecken, mit einem Buch am Pool zu entspannen oder den Ausblick auf das blaue Meer oder üppigen Olivenbäumen zu genießen.
Luxusimmobilien in der Region Istrien
Schaffen Sie sich Ihren mediterranen Wohntraum mit einer unserer Immobilien in einer der begehrtesten Lagen Kroatiens, in der Region Istrien. Vor allem die kurze Anreisezeit von Österreich aus macht es möglich, Ihre Traumimmobilie im Süden auch für ein verlängertes Wochenende zu genießen. Lassen Sie sich von der Schönheit des Landes und unseren stilvollen, exklusiven Luxusimmobilien in Kroatien überzeugen.
Verschaffen Sie sich einen ersten Überblick von unseren aktuellen Immobilien in Kroatien und kontaktieren Sie uns gerne, wenn Ihr Interesse geweckt ist. Sowohl für unsere kroatischen als auch für unsere italienischen Angebote haben wir vor Ort deutschsprachige Kooperationspartner.
Sollte für Sie noch nicht das Passende dabei zu sein, dann kontaktieren Sie uns gerne für eine unverbindliche Beratung.






















































































































































